







Land For Sale Loughborough
PROPERTY ID: 146817
PROPERTY TYPE
Land
STATUS
Available
SIZE
0.06 ACRES
Key Features
Property Details
Development site in Loughborough town centre - Guide Price £350,000
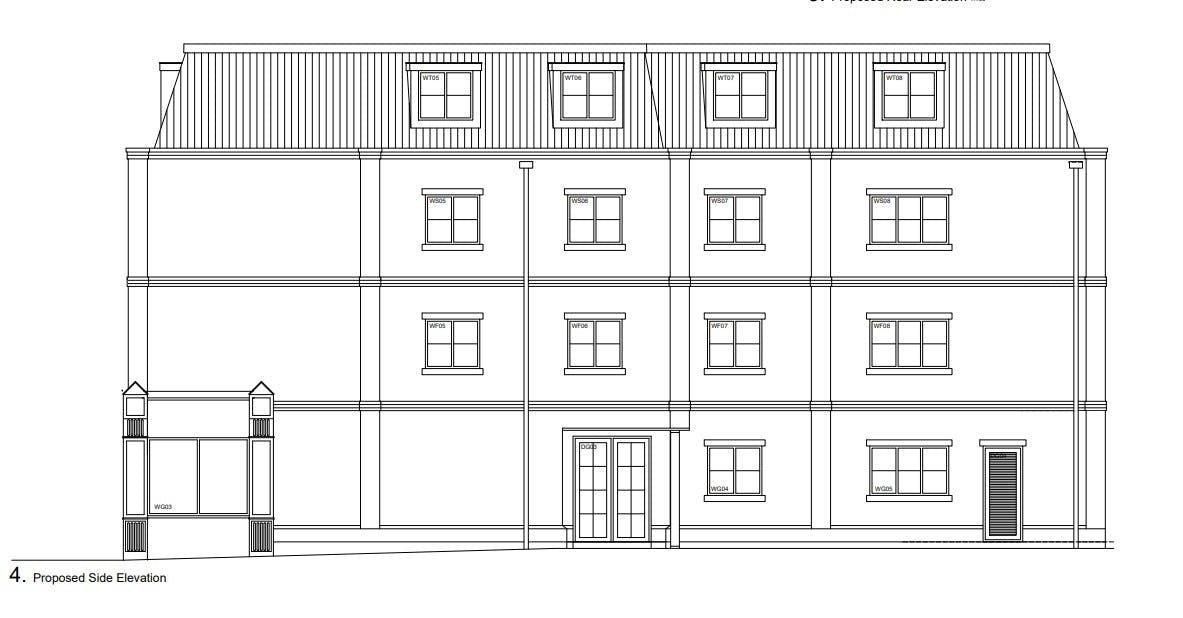
PP for Retail Unit plus 9 Apartments over 4 floors - Total 570 Sq m
Size - 240 sq m
Price/Rent - Offers in the region of £350,000
Business Rates - Vacant building plot
Legal Fees - Each party to bear their own costs
VAT To be confirmed
EPC exempt - No building present
Car Parking - The building occupies the entire site and there is no additional parking.
The property benefits from outline planning permission for a 4 storey property consisting of a Retail unit and 1 bed apartment to the Ground Floor with 3 Apartments (2 x 2 bed and 1 x 1 bed) to the First Floor, 3 Apartments (2 x 2 bed and 1 x 1 bed) to the Second Floor and 2 Apartments (1 x 2 bed and 1 x 1 bed) to the Third Floor.
Plans and details are available upon request.
Located just 60m off the main pedestrianised town centre of the popular market and university town of Loughborough in the Charnwood Borough of Leicestershire. The town has a population in the region of 60,000 making it the largest settlement outside of the County capital of Leicester. The Town lies on the A6 and is approximately midway between Leicester and Nottingham. Loughborough is home to Loughborough university, an excellent facility that boasts one of the largest sports scholarship schemes in the UK.
Good road and rail links to surrounding towns and cities, with the M1, M42 and M69 / M6 all within a 20-mile radius and direct rail access to St Pancras station.
Offered for sale freehold with the benefit of the existing Outline consent.
Viewing is strictly by prior appointment with the agents P & F Commercial Tel: 01664 431330 or email: office@pandfcommercial.com
Both Parties will be responsible for their own legal costs.
Finance may be available through Independent Financial Brokers and P&F Commercial would be please to make an introduction for you. The Brokers are completely Independent of P&F Commercial and will offer confidential, unbiased advice regulated by the Financial Authorities. Please ask for further details.